Header Image

51012, IA Cherokee, 5065 HIGHWAY 3

51012 in Cherokee, IA features homes for sale in the Sale category, with Real Estate MLS # [MLS

$425,000

  • 3
  • 3
  • 3143
  • Active
  Virtual Tour
Price Decreased

General Description

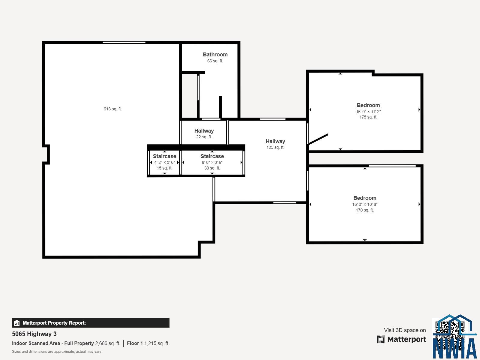
***Listing Update*** The sellers are now offering 2 incentives. First, they will give $10,000 for the buyer to personalize the home. 2nd, they are now also offering a 2-1 buy down on the buyers mortgage!!! This could lower your payment for a couple years and save you Thousands!! This beautiful ranch style home sits on 3.42 acres of ground with in a mile of Cherokee right on HWY 3. On the main level you will find your living room, dining room, kitchen, office/den, full bath, master suite, and additional bedroom. There is even a nice mud room/entryway as you enter from the garage. On the lower level you will find a huge family room, a 3/4 bath, a bedroom, a nonconforming bedroom, utility room, and additional storage areas. The lower level is walk out as well to the backyard with a wooded view where you often can spot deer, turkeys, and many other animals walking around down the hill in the trees. There is additional outdoor space on the second story deck that is just off the kitchen/dining area. This one is definitely one you will want to check out!!

Legal: LT 2&3 SE NE & NE SE 980C
Status: Active

Property Information

827637

$425,000

5065 HIGHWAY 3

Other Default

Cherokee

Cherokee

IA

Sale

Residential

Single Family

Ranch

Finished, Full, Poured, Walkout

3143

3

Attached

244

2001

3

3

51012

4230

LISTED BY

Rasmus Realty & Auction, Rusty Rasmus (712.261.1965)

PROPERTY LOCATION

MORTGAGE CALCULATOR


Similar listings

$439,000

Status: Active
865 Aster Dr, Cherokee, IA 51012

  830178

 4

 4

  2,335


Listed by : RASMUS REALTY & AUCTION, RUSTY RASMUS (712.261.1965)
Rachel Carlson - REALTOR/OWNER, Pricing Strategy Advisor (PSA)

Rachel Carlson

REALTOR/OWNER, Pricing Strategy Advisor (PSA)

Ask About this Property #827637

Share


NEWSLETTER