Header Image

50568, IA Newell, 410 4TH ST W

50568 in Newell, IA features homes for sale in the Sale category, with Real Estate MLS # [MLS

$135,000

  • 2
  • 2
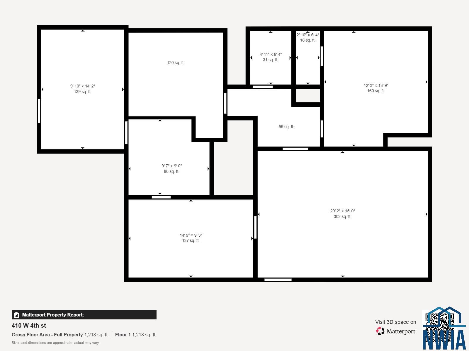
  • 1215
  • Active
  Virtual Tour
Price Decreased

General Description

Welcome to this beautifully maintained 2-bedroom, 1.5-bathroom home offering 1,215 sq ft of comfortable living space. Perfectly blending charm and convenience, this home features updated flooring throughout and a modernized kitchen equipped with contemporary finishes—ideal for both everyday living and entertaining. The spacious master bedroom includes its own private half-bath for added comfort and privacy. A full bathroom serves guests and the second bedroom; both thoughtfully designed for functionality and style. Step outside to a fully fenced backyard, perfect for pets, gardening, or hosting outdoor gatherings. Whether you're a first-time buyer, downsizing, or looking for a move-in ready home, this property offers a fantastic opportunity in a desirable neighborhood. Don’t miss your chance to own this delightful home with updates already done—just move in and enjoy!

Legal: 05-12 NEWELL CORP. S 46'
Status: Active

Property Information

830369

$135,000

410 W 4TH ST

Surrounding Areas/Other Areas

Newell

Buena Vista

IA

Sale

Residential

Single Family

Ranch

None

1215

1

Attached

25

1952

2

2

50568

1820

LISTED BY

Weaver LLC Realtors, Melissa Perez Martinez (712.261.2173)

PROPERTY LOCATION

MORTGAGE CALCULATOR


Similar listings

$117,500

Status: Active
210 Harrison, Newell, IA 50568

  830642

 2

 1

  1,116


Listed by : COMPASS REAL ESTATE OF NW IA, STEVEN BRASHEARS (712.299.4684)
Rachel Carlson - REALTOR/OWNER, Pricing Strategy Advisor (PSA)

Rachel Carlson

REALTOR/OWNER, Pricing Strategy Advisor (PSA)

Ask About this Property #830369

Share


NEWSLETTER