Header Image

51201, IA Sheldon, 622 7th Ave

$469,000

  • MLS# 832266
  • Bedrooms 5
  • Bathrooms 3
  • Total Sq.ft 3,750
  • Property Type Residential
  • Style Ranch
  • Basement Block,Poured
  • Year Built 2026

Property Description

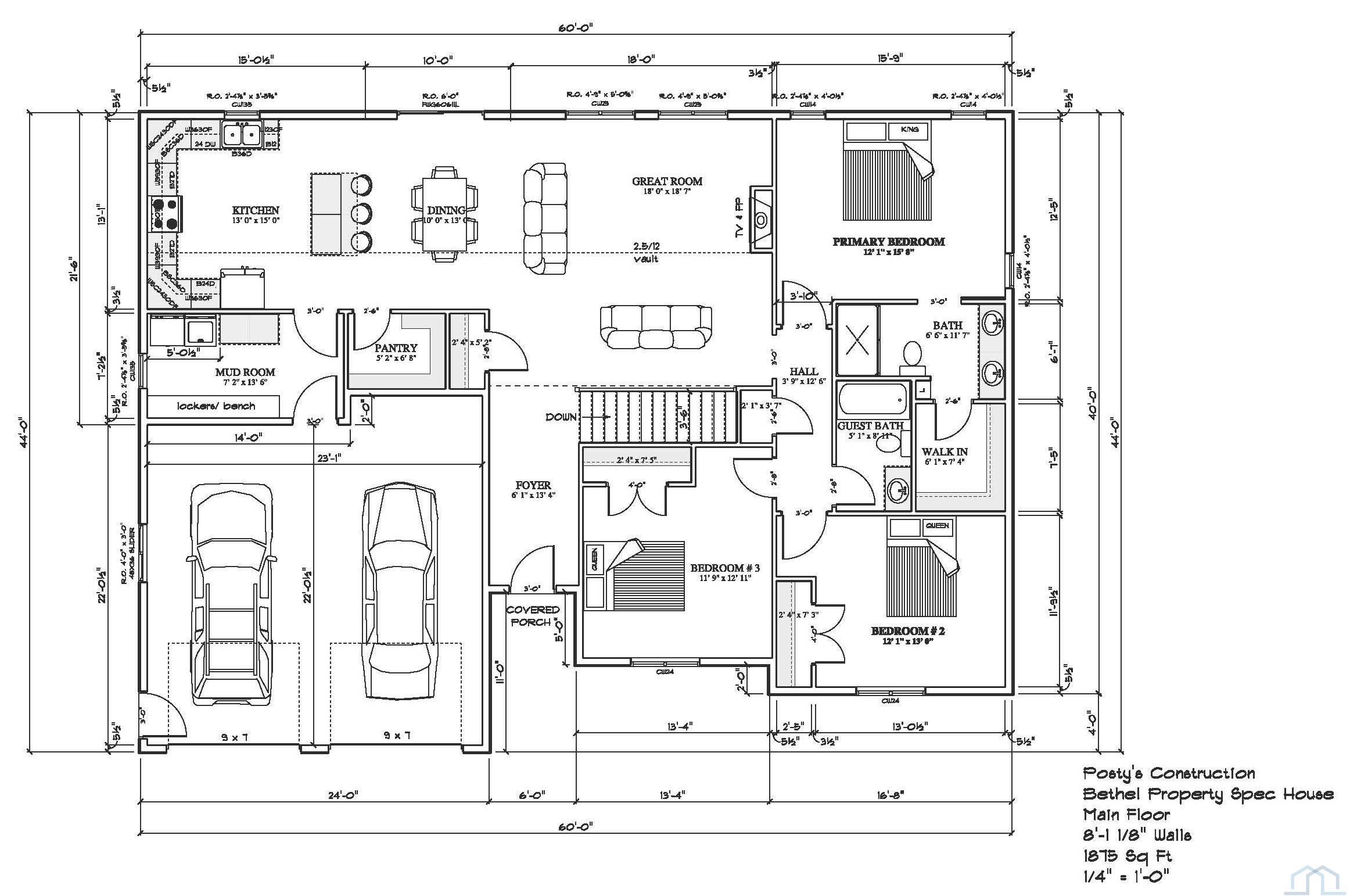
Welcome home to this stunning new-build single-family residence offering an impressive 3,750 square feet of finished living space designed for comfort, style, and functionality. With five spacious bedrooms and three full bathrooms, this home provides the perfect layout for growing families, multi-generational living, or anyone who simply wants room to spread out. The three stall garage offers additional parking or storage space. Inside, you’ll find durable and stylish LVP flooring throughout, complemented by quartz countertops and custom cabinetry that create a clean, modern aesthetic. The thoughtfully designed kitchen includes a generous walk-in pantry for added convenience and storage. The inviting fireplace serves as a warm focal point in the main living area, perfect for relaxing evenings at home. The primary suite offers a private retreat, complete with a large master closet, while abundant storage throughout the home ensures everything has its place. Step outside to enjoy the 12' x 16' low-maintenance composite deck, ideal for entertaining or unwinding after a long day. The oversized lot features a huge backyard providing endless possibilities for outdoor living, play, or future additions, and landscaping is included for immediate curb appeal. Offered at $469,000, this beautifully finished new construction home combines modern upgrades, generous space, and exceptional value. Schedule your private showing today and make it yours.

Legal: See Beacon
Active

Property Information

  • 832266
  • $469,000
  • 622 7th Ave
  • Surrounding Areas/Other Areas
  • Sheldon
  • O’Brien
  • IA
  • Sale
  • Residential
  • Single Family
  • Ranch
  • Block, Poured
  • 3750
  • 3
  • Attached
  • 2
  • 2026
  • 3
  • 5
  • 51201

LISTED BY

Northwest Realty, Gene Bomgaars (712.348.1951)

Property Location

Request Info For MLS #832266

Rachel Carlson - REALTOR/OWNER, Pricing Strategy Advisor (PSA)

Rachel Carlson

REALTOR/OWNER, Pricing Strategy Advisor (PSA)

Mortgage Calculator

This calculator will compute the monthly payment on a mortgage based upon figures you supply.

Subscribe To Our Newsletter

The newsletter is sent periodically and will update you on the latest real estate news and offers.