Header Image

51201, IA Sheldon, 633 7th Street

51201 in Sheldon, IA features homes for sale in the Sale category, with Real Estate MLS # [MLS

$299,999

  • 2
  • 2
  • 1500
  • Active
Price Decreased

General Description

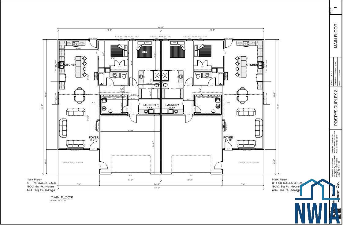
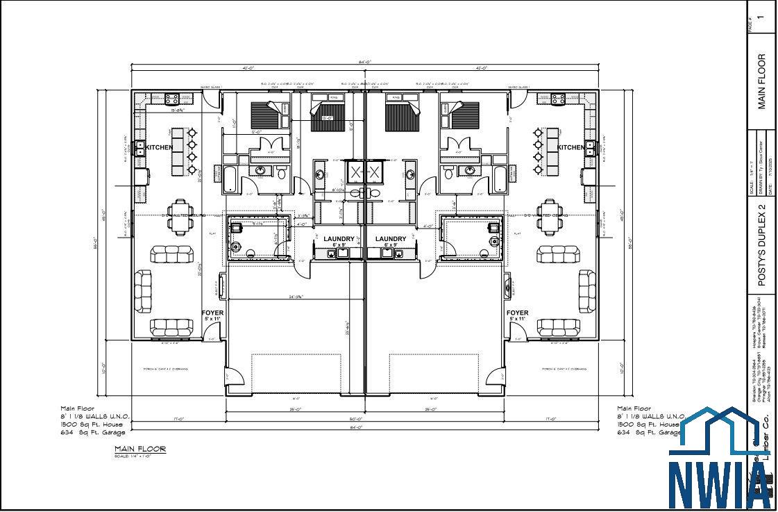
A Beautiful Opportunity awaits you here with New Duplex Construction  in a new development area: "THE PHOENIX AT BETHEL"    The development area will include 6 duplexes and 2 residential homes. These units are in the process of being built currently.  Plans are complete but if you are in early,  you will have the opportunity to customize a few options with the builder.  Check out these features of the new construction in a beautiful location in the center of town at "The Phoenix at Bethel" 1500 square feet on the main level This unit will be built on a slab and not have a lower level 8' sidewalls  on the main  Vaulted ceiling in the Great Room 2 Bathrooms on the main including a Master Suite Quartz Countertops Custom cabinetry by G & E Cabinets   Cabinets will be Maple and painted white. Remaining portion will be vinyl plank flooring. Zero entrance from garage to living quarters and from outside into front door. 2 x 6 stud wall construction Electric Fireplace in the Great Room LP Smartboard siding feature the front of duplex to contain approximately 75% stone Siding offers 30 year Manufacturers warranty Pella Vinyl Windows Asphalt shingles Kitchen appliances not included but will be equipped for gas or electrical appliances Gas Furnace Lot will be seeded ***Check out this opportunity soon.  Beautiful new construction with the goal of completion in Summer of 2025!!

Legal: See Beacon
Status: Active

Property Information

824055

$299,999

633 7th Street

Surrounding Areas/Other Areas

Sheldon

O’Brien

IA

Sale

Residential

Condominium

Ranch

Unfinished

1500

2

Attached

574

2024

2

2

51201

LISTED BY

Northwest Realty, Gene Bomgaars (712.348.1951)

PROPERTY LOCATION

MORTGAGE CALCULATOR


Similar listings

$299,999

Status: Active
627 7th Street, Sheldon, IA 51201

  824054

 2

 2

  1,500


Listed by : NORTHWEST REALTY, GENE BOMGAARS (712.348.1951)
Price Decreased

$284,900

Status: Active
412 Washington Ave, Sheldon, IA 51201

  829956

 2

 2

  1,720


Open House: 15 Oct, 2025 (05:30 PM to 07:00 PM)
Listed by : STOKES REALTY, LLC, MICHAEL STOKES (712.441.6583)
Open House Price Decreased

$235,000

Status: Active
512 Normal College Avenue, Sheldon, IA 51201

  827132

 3

 2

  2,228


Listed by : NORTHWEST REALTY, AMY SIETSTRA (712.348.2972)
Price Decreased

$229,000

Status: Active
1140 14th Street, Sheldon, IA 51201

  826979

 3

 1

  1,805


Listed by : ISB SERVICES INC, COREY ELGERSMA (712.348.1770)
Price Decreased
Rachel Carlson - REALTOR/OWNER, Pricing Strategy Advisor (PSA)

Rachel Carlson

REALTOR/OWNER, Pricing Strategy Advisor (PSA)

Ask About this Property #824055

Share


NEWSLETTER